Модульная котельная МКУ-1,8

Котельные модульного типа МКУ-1,8 представляют собой блочное оборудование, которое имеет полный комплект агрегатов для подачи теплоносителя к потребителям. Модули дополняются множеством автоматики. Благодаря полной автоматизации оборудование не требует вмешательства для обслуживания. Также модульные котельные нередко оснащаются охранными сигнализациями, которые предотвращают стороннее проникновение.

В нашем интернет-магазине вы можете купить Модульная котельная МКУ-1,8 по выгодной цене. Оформить заказ можно онлайн или по телефонам.

Цена:
не указана
Затрудняетесь с выбором?

Устройство и принцип работы

Модульная котельная МКУ-1,8 — это набор основного оборудования в сварных металлических каркасах, которые после монтажа становятся единым помещением. Котельная может быть оборудована внутренними системами водоснабжения для личного пользования работников, сантехнической мойкой и санузлом. Отопление в котельной обеспечивается теплом, выделяющимся при работе котлов, а отопление в обслуживаемых помещениях — водяными радиаторами.

Модульная котельная МКУ-1,8 подразумевает ручную топливоподачу и шлакоудаление. Для хранения топливных запасов можно организовать складское помещение.

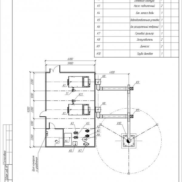
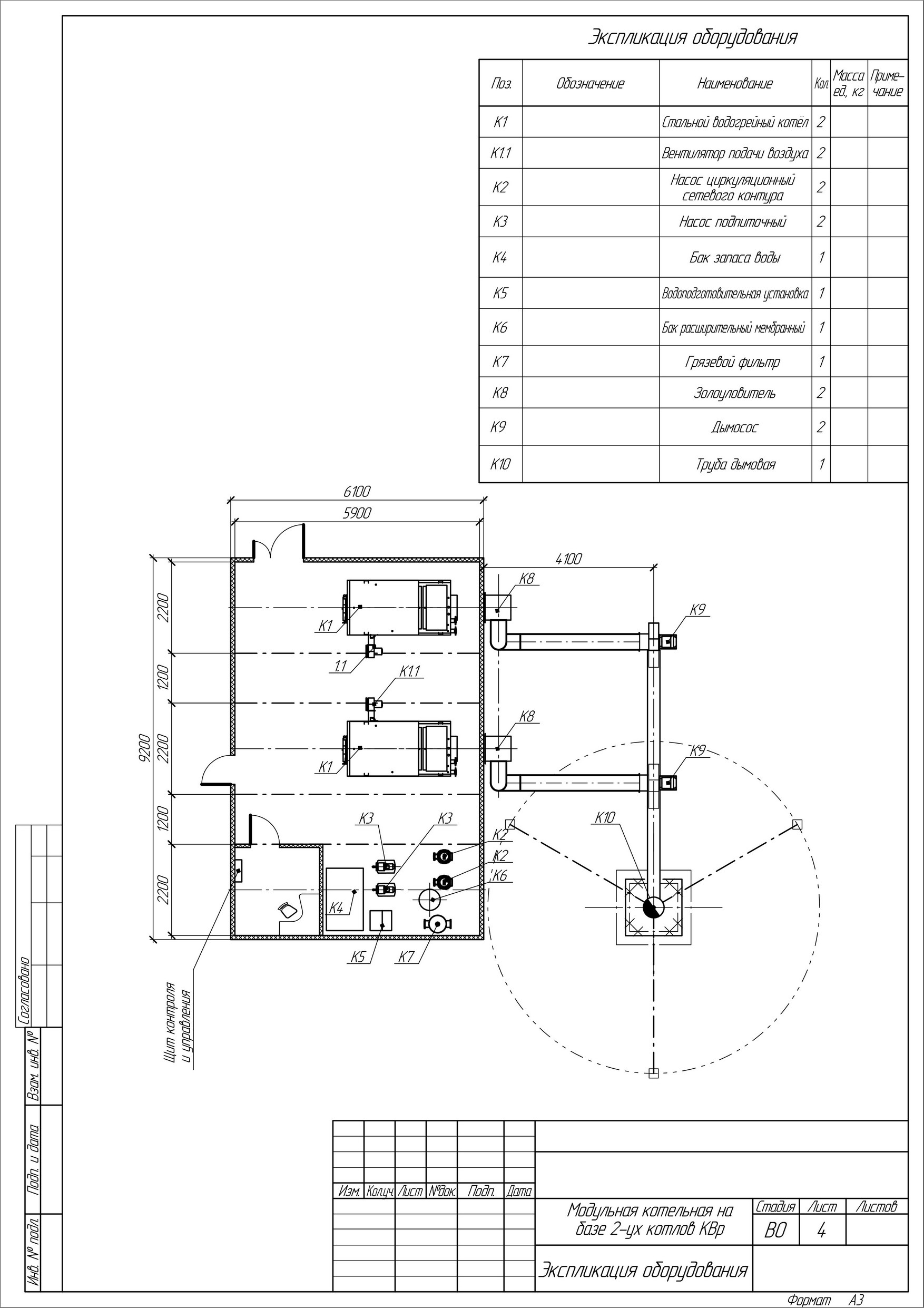
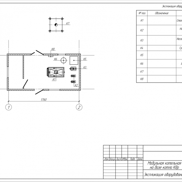
Модульная котельная МКУ-1,8 может быть одноконтурной или двухконтурной. Перед попаданием в котельную систему, вода проходит процессы водоподготовки, степень которых зависит от качества среды. Минимальная подготовка включает в себя прохождение через грязевой фильтр, очищающий воду от твердых частиц и предупреждающий поломки. Далее вода насосами подается в котлы, где нагревается до необходимой температуры, и оттуда — на обслуживаемые территории. Регулирование производительности котельной происходит путем отключения котлов или изменением мощности оборудования за счет подачи топлива.

Модульная котельная МКУ-1,8 представляет собой автономный источник энергии для теплоснабжения и подогрева воды. Она не требует большой территории для установки, легко демонтируется и состоит из отдельных блоков, что позволяет быстро транспортировать котельную.

Особенности и преимущества

Конструктивно котельные модульного типа МКУ-1,8 являются автономным блоком. Снаружи оборудование защищено стенками из профиля с внутренним утеплением. Котельная имеет полноценную высокопроизводительную вентиляцию, которая управляется автоматикой. Внутри располагается водогрейное устройство. Котельное оборудование подключается к основным коммуникациям, которые соединяются с потребителями. На практике модульные системы отличаются высоким КПД. Широкое разнообразие нагревательного оборудования и компактность являются главными преимуществами котельных.

Модульные блоки способны обеспечить эффективную подачу теплоносителя сразу для нескольких домов или предприятий. Технология позволяет обустроить отопление в сжатые сроки и с минимальными затратами. При этом подача тепла будет осуществляться без каких-либо технических проблем. Встроенная автоматика не требует присутствия операторов. В случае возникновения аварийной ситуации датчики передают сигнал диспетчеру, который принимает все необходимые решения.

Размещение и установка

Модульная котельная МКУ-1,8 устанавливается на ровный фундамент. Блоки соединяются болтами, трубопроводы, электрика и автоматика стыкуется. Далее котельная подключается к коммуникациям и проводятся пуско-наладочные работы.

Модульная котельная МКУ-1,8 поставляется блоками, которые на месте монтажа собираются в одно здание. Блоки котельной максимально укомплектованы, все оборудование заводской сборки, что позволяет начать эксплуатацию котельной сразу после монтажа.

Эксплуатация и техническое обслуживание

Важно соблюдать периодичность профилактических работ: осмотр котельной на наличие неисправностей, регулярная чистка котлов и дымоходов, регулировка, настройка параметров, осмотр и проверка топливных горелок, анализ выходных газов и своевременное устранением неисправностей.

Характеристики
Мощность
1,8, МВт
На основе котла
КВр-0,6; КВм-0,6; КВр-0,9; КВм-0,9
Тип топочного устройства
Ручная; Механическая
Топливоподача и шлакоудаление
Ручная; Механическая
КПД, не менее
80
Мощность
1,55, Гкал
Вид топлива
Бурый уголь; Каменный уголь
Вид топки
Колосниковая решетка; ОУР; Шнековая подача; ТШПМ
Температура дымовых газов, не более
250, °C
Схемы
География поставок

Наши преимущества
Затрудняетесь
с выбором?
Позвоните нам по номеру
8 (800) 200-38-85
Или оставьте заявку на обратный звонок, и мы свяжемся с вами в ближайшее время.
Отправляя свои личные данные через формы на сайте, Вы даёте своё согласие на обработку персональных данных согласно Федеральному закону №152-ФЗ «О персональных данных» от 27.07.2006 г. в редакции от 01.07.2017.
Вы смотрели