Модульная котельная МКУ-0,75
Котельные модульного типа МКУ-0,75 представляют собой блочное оборудование, которое имеет полный комплект агрегатов для подачи теплоносителя к потребителям. Модули дополняются множеством автоматики. Благодаря полной автоматизации оборудование не требует вмешательства для обслуживания. Также модульные котельные нередко оснащаются охранными сигнализациями, которые предотвращают стороннее проникновение.
В нашем интернет-магазине вы можете купить Модульная котельная МКУ-0,75 по выгодной цене. Оформить заказ можно онлайн или по телефонам.
| Цена: | не указана |
Устройство и принцип работы
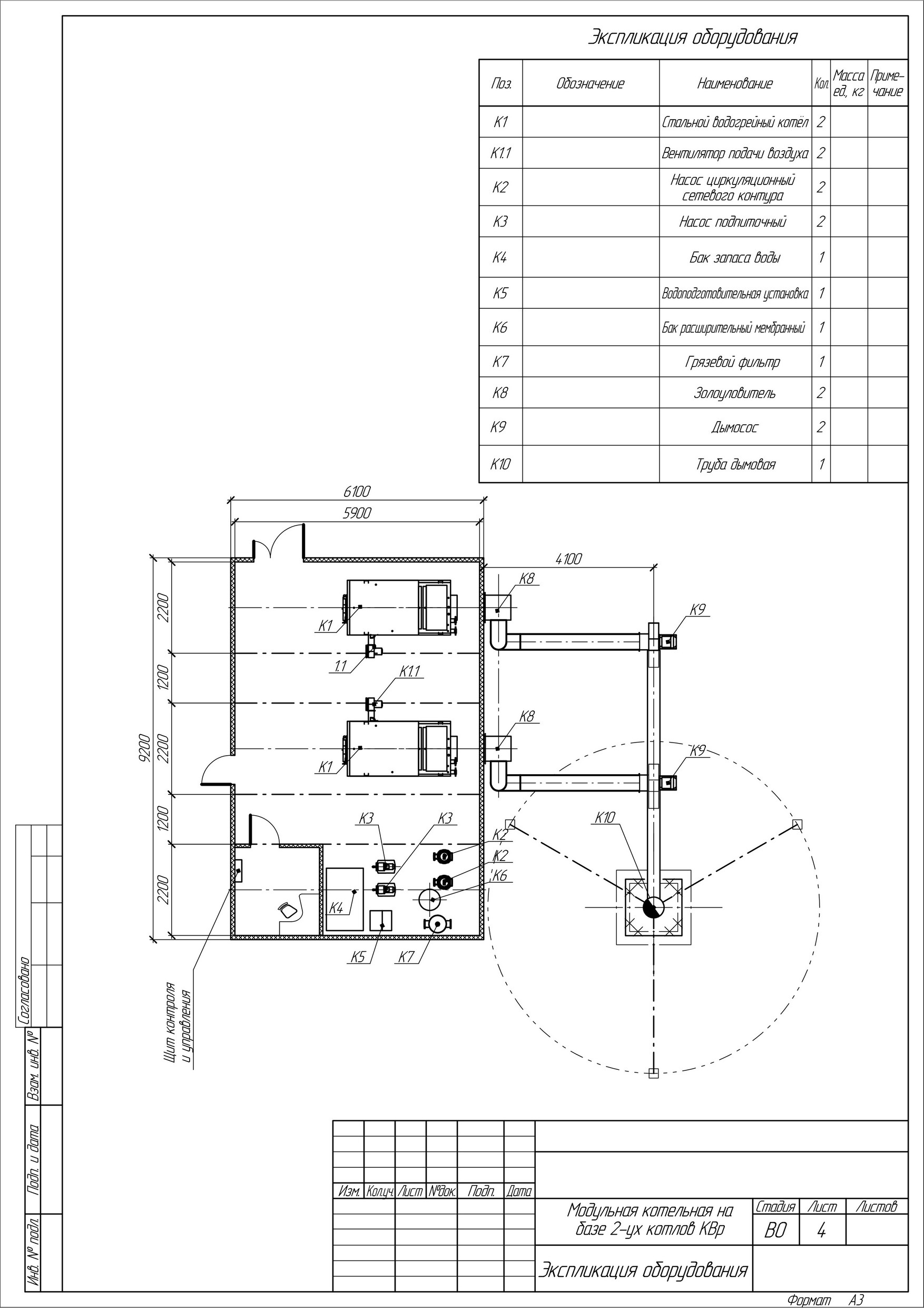
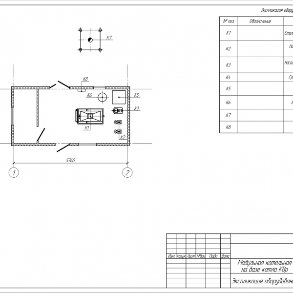
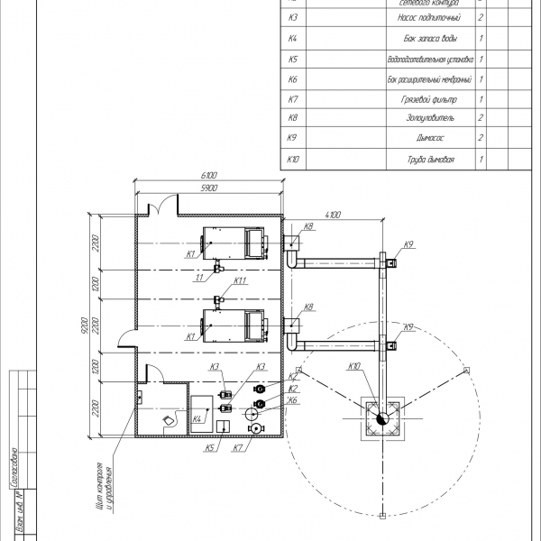
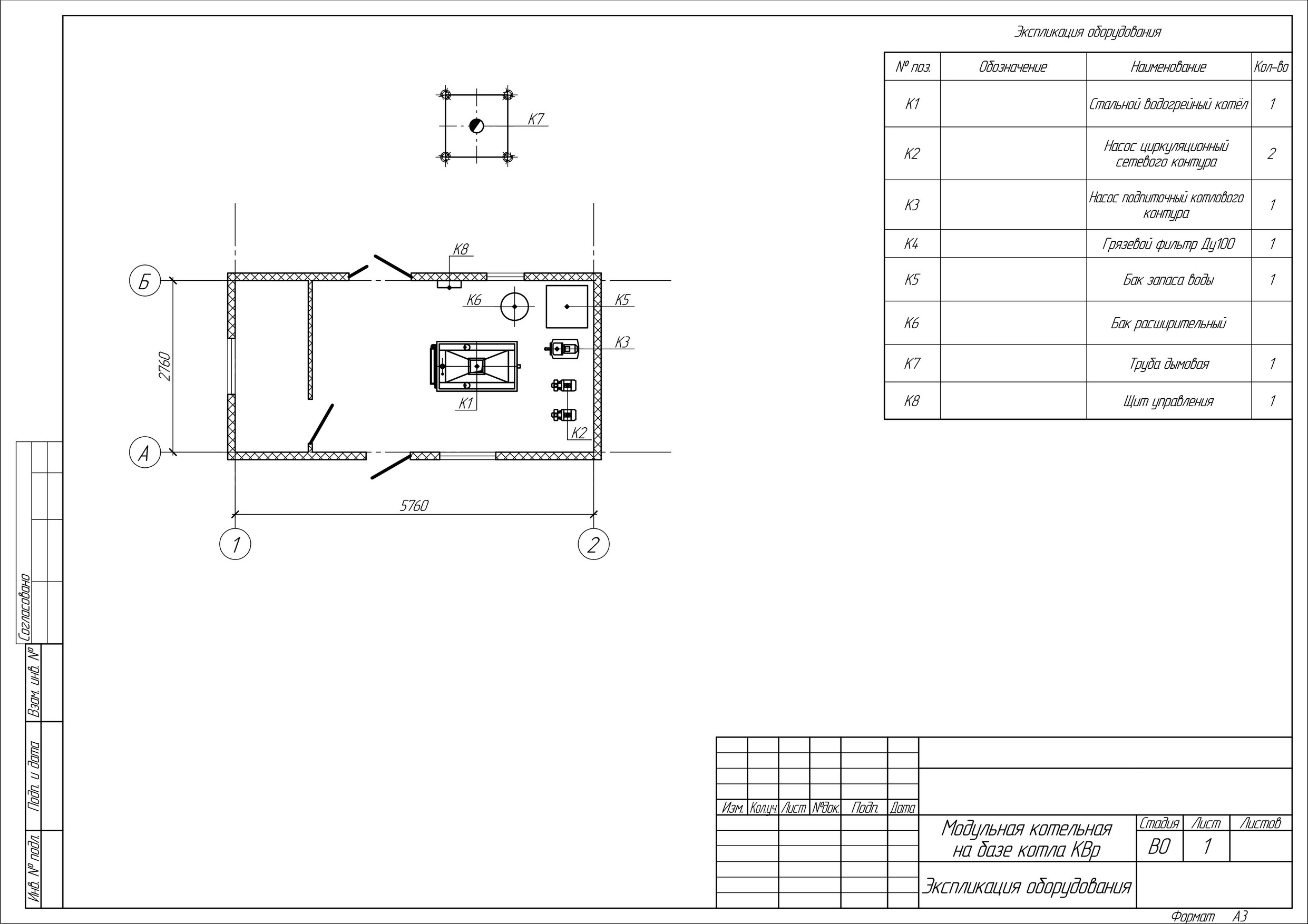
Модульная котельная МКУ-0,75 — это набор основного оборудования в сварных металлических каркасах, которые после монтажа становятся единым помещением. Котельная может быть оборудована внутренними системами водоснабжения для личного пользования работников, сантехнической мойкой и санузлом. Отопление в котельной обеспечивается теплом, выделяющимся при работе котлов, а отопление в обслуживаемых помещениях — водяными радиаторами.
Модульная котельная МКУ-0,75 подразумевает ручную топливоподачу и шлакоудаление. Для хранения топливных запасов можно организовать складское помещение.
Модульная котельная МКУ-0,75 может быть одноконтурной или двухконтурной. Перед попаданием в котельную систему, вода проходит процессы водоподготовки, степень которых зависит от качества среды. Минимальная подготовка включает в себя прохождение через грязевой фильтр, очищающий воду от твердых частиц и предупреждающий поломки. Далее вода насосами подается в котлы, где нагревается до необходимой температуры, и оттуда — на обслуживаемые территории. Регулирование производительности котельной происходит путем отключения котлов или изменением мощности оборудования за счет подачи топлива.
Модульная котельная МКУ-0,75 представляет собой автономный источник энергии для теплоснабжения и подогрева воды. Она не требует большой территории для установки, легко демонтируется и состоит из отдельных блоков, что позволяет быстро транспортировать котельную.
Особенности и преимущества
Конструктивно котельные модульного типа МКУ-0,75 являются автономным блоком. Снаружи оборудование защищено стенками из профиля с внутренним утеплением. Котельная имеет полноценную высокопроизводительную вентиляцию, которая управляется автоматикой. Внутри располагается водогрейное устройство. Котельное оборудование подключается к основным коммуникациям, которые соединяются с потребителями. На практике модульные системы отличаются высоким КПД. Широкое разнообразие нагревательного оборудования и компактность являются главными преимуществами котельных.
Модульные блоки способны обеспечить эффективную подачу теплоносителя сразу для нескольких домов или предприятий. Технология позволяет обустроить отопление в сжатые сроки и с минимальными затратами. При этом подача тепла будет осуществляться без каких-либо технических проблем. Встроенная автоматика не требует присутствия операторов. В случае возникновения аварийной ситуации датчики передают сигнал диспетчеру, который принимает все необходимые решения.
Размещение и установка
Модульная котельная МКУ-0,75 устанавливается на ровный фундамент. Блоки соединяются болтами, трубопроводы, электрика и автоматика стыкуется. Далее котельная подключается к коммуникациям и проводятся пуско-наладочные работы.
Модульная котельная МКУ-0,75 поставляется блоками, которые на месте монтажа собираются в одно здание. Блоки котельной максимально укомплектованы, все оборудование заводской сборки, что позволяет начать эксплуатацию котельной сразу после монтажа.
Эксплуатация и техническое обслуживание
Важно соблюдать периодичность профилактических работ: осмотр котельной на наличие неисправностей, регулярная чистка котлов и дымоходов, регулировка, настройка параметров, осмотр и проверка топливных горелок, анализ выходных газов и своевременное устранением неисправностей.
10 лет
на рынке
Описание достоинства
производственная
база
Описание достоинства
ассортимент
товаров
Описание достоинства
на все
товары
Описание достоинства
с выбором?
Котельные модульного типа МКУ-0,75 представляют собой блочное оборудование, которое имеет полный комплект агрегатов для подачи теплоносителя к потребителям. Модули дополняются множеством автоматики. Благодаря полной автоматизации оборудование не требует вмешательства для обслуживания. Также модульные котельные нередко оснащаются охранными сигнализациями, которые предотвращают стороннее проникновение.

























